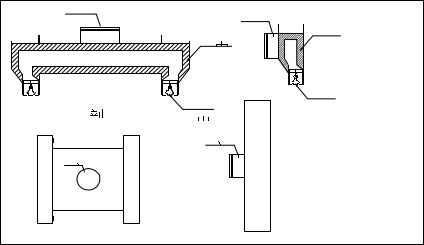
灯盘静压送风箱
灯盘静压送风箱
风箱尺寸配合灯盘设计要求,与条缝型、线型常规风口及灯具面板组合一体,不仅外形美观且具有防凝露、噪音低、节能、方便安装等优点。尺寸制造配合灯盘,适合用于变风量系统。

产品特性
1、配合灯盘和天花,美观耐用
2、标准尺寸 1200mm*600mm,600mm*600mm
3、特别尺寸可以订造
4、材料选择:镀锌铁 0.6mm、0.8mm、1.0mm 厚度
5、内保温:玻璃纤维保温棉
6、可选择使用用内孔网,保护保温棉和增加消音效果
7、形式选择:单风箱、双风箱。
产品简图


