消声静压箱
消声静压箱
消声静压箱把部分动压变为静压使风吹得更远,在降低噪音的同时使风量均匀分配,减少动压损失。 而且还有万能接头的作用,把静压箱很好的应用到通风系统中,可提高通风系统的综合性能。
产品特征
1、0.8mm,1.0mm 或1.2mm厚镀板
2、标准玻璃纤维内保温,玻璃厚度爲 50mm
3、内置镀锌消音孔网板,壁厚爲 50mm
4、主要参数:消声量 6dB(A)
5、压力损失22Pa(风速 6m/s 时)
6、尺寸按要求制造
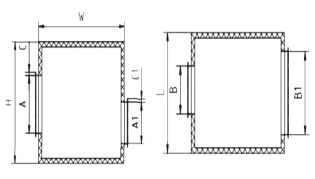
产品简图


